Erweiterung eines Wohnhauses aus den 30-er Jahren
Das Thema: Alt und Neu
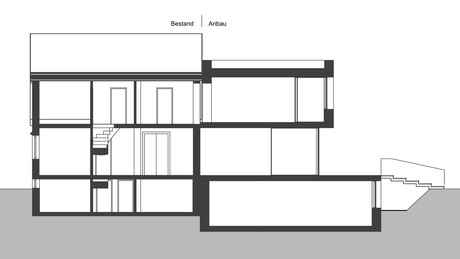
Die Bebauung eines Grundstücks in der Etzestraße in Hamburg -Fuhlsbüttel, bestehend aus einem 1- geschossigen Wohngebäude aus dem Jahre 1932 mit Satteldach und Unterkellerung, soll als Familienwohnsitz genutzt und um einen rückwärtigen Anbau erweitert werden.
Das in seiner Größe und Erscheinung zurückhaltende Bestandsgebäude soll straßenseitig unverändert erhalten bleiben und lediglich instandgesetzt werden.
Die im rückwärtigen Garten angeordnete Erweiterung ist von der Straße aus kaum wahrnehmbar. Mit einer modernen, klaren Formensprache stellt sie einen deutlichen Kontrast zum bestehenden Baukörper her. Beide Gebäudeteile ergänzen sich ohne miteinander in Konkurrenz zu treten.
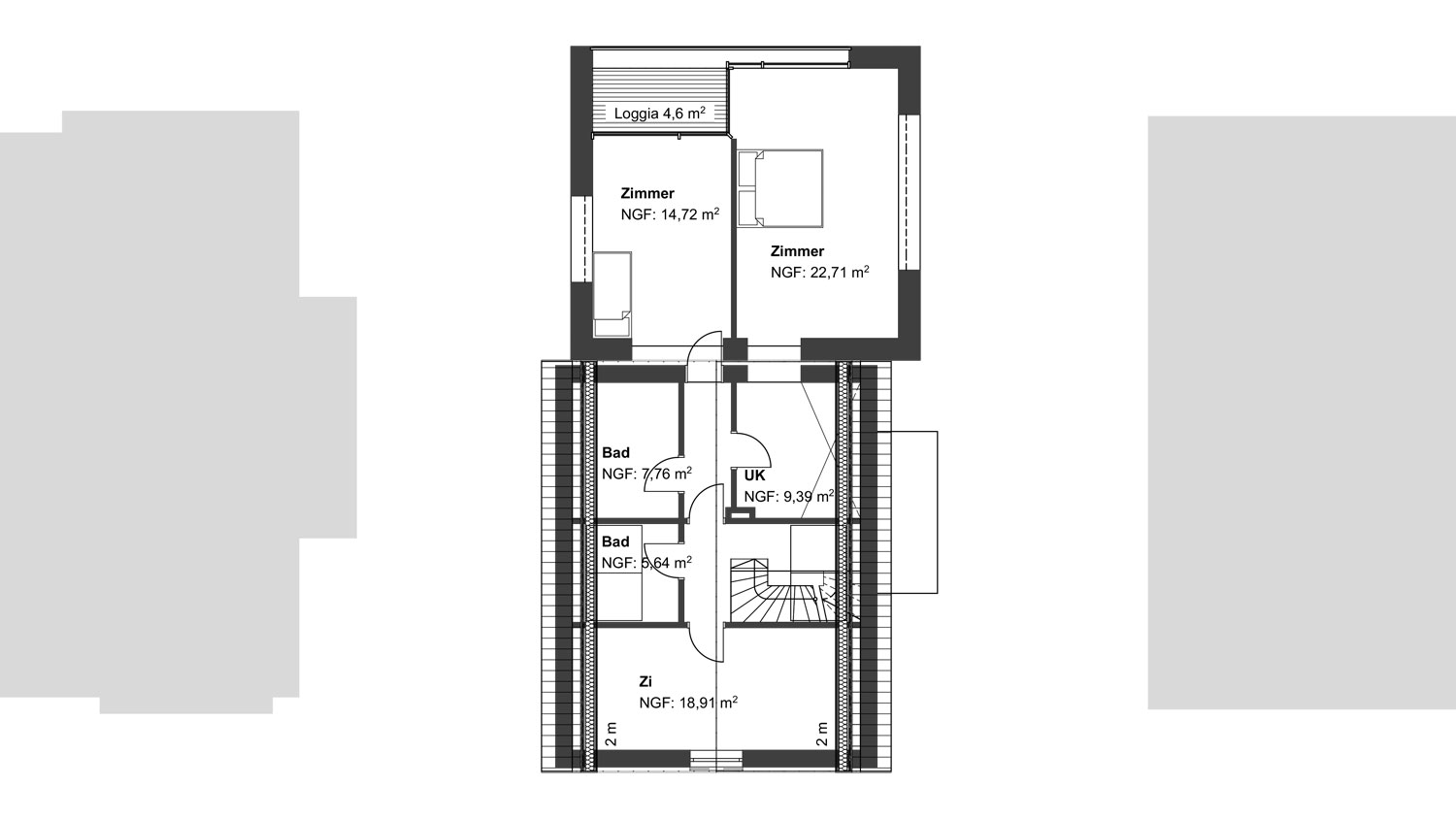
Der Anbau wird intern mit dem Neubau verbunden. Dessen Erdgeschoss liegt auf gleichem Niveau wie beim Bestand und somit ca. 75 cm über Terrain.
Im Erdgeschoss des Anbaus ist ein Wohnzimmer, im Obergeschoss zwei Wohn- bzw. Schlafräume geplant. Die Terrasse im Erdgeschoss soll unterbaut werden.